IGLO 5 Classic
Okna docenione przez Klientów na całym świecie. Wyróżniają się nie tylko bardzo dobrymi parametrami izolacji cieplnej, ale również doskonałą estetyką wykonania. Szeroka gama olein Renolit i wiele opcji dodatkowych pozwala stworzyć okna, które spełnią oczekiwania najbardziej wymagających Klientów.
- okucia MACO MULTI-MATIC KS z 2 zaczepami antywyważeniowymi z powłoką antykorozyjną Silber-Look zapewniającą długotrwałą ochronę oraz płynną pracę okucia
- podnośnik skrzydła (blokada błędnego położenia klamki – w zależności od wysokości okna)
- zgrzew V-Perfect
- mikrowentylacja w oknach uchylno-rozwiernych
- osłonki na zawiasy w 4 kolorach: białym, srebrnym, jasnym brązowym, brązowym
- klamka aluminiowa
- standardowo pakiet 2-szybowy (1-komorowy) wypełniony argonem, o współczynniku Ug = 1,1 W/(m²K)
- międzyszybowa ramka stalowa ocynkowana lub ciepła ramka tworzywowa Swisspacer Ultimate
- 2 uszczelki EPDM w kolorze czarnym (zew. i wew.)
- uszczelka wypełniająca dolny rowek okuciowy
- 1,5 mm stalowe wzmocnienie ościeżnicy i skrzydła (2 mm w przypadku skrzydła drzwi balkonowych) w kształcie „ceownika”
- rdzeń profilu w kolorze białym
- 5-komorowa listwa podparapetowa PVC z uszczelką
- Profil dostępny w dwóch kolorach: biały oraz brązowy.
![]()
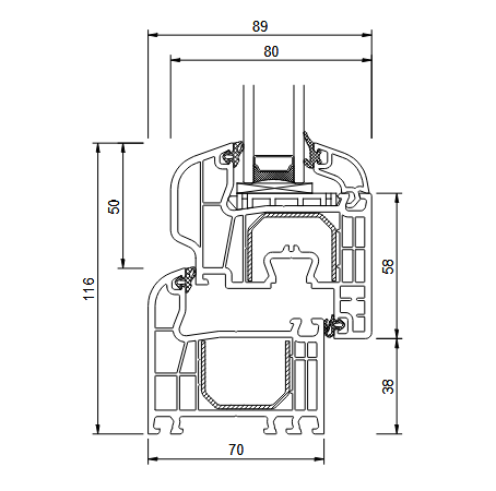
IGLO 5
5-komorowy system posiada bardzo dobre parametry izolacji cieplnej. Nasze autorskie rozwiązanie zbudowane jest ze śnieżnobiałego profilu klasy A, wykonanego wyłącznie z materiału pierwotnego, który jest gwarancją najwyższej jakości. Okna doskonale sprawdzą się w ciepłym jak i zimnym klimacie.
Wyposażenie standardowe:
- okucia MACO MULTI-MATIC KS z 2 zaczepami antywyważeniowymi z powłoką antykorozyjną Silber-Look zapewniającą długotrwałą ochronę oraz płynną pracę okucia
- podnośnik skrzydła (blokada błędnego położenia klamki – w zależności od wysokości okna)
- mikrowentylacja w oknach uchylno-rozwiernych
- osłonki na zawiasy w 4 kolorach: białym, srebrnym, jasnym brązowym, brązowym
- klamka aluminiowa
- pakiet 2-szybowy (1-komorowy) wypełniony argonem, o współczynniku Ug = 1,1 W/(m²K)
- międzyszybowa ramka stalowa ocynkowana lub ciepła ramka tworzywowa Swisspacer Ultimate
- 2 uszczelki EPDM w kolorze czarnym (zew. i wew.)
- uszczelka wypełniająca dolny rowek okuciowy
- 1,5 mm stalowe wzmocnienie ościeżnicy i skrzydła (2 mm w przypadku skrzydła drzwi balkonowych) w kształcie „ceownika”
- rdzeń profilu w kolorze białym
- 5-komorowa listwa podparapetowa PVC z uszczelką
- Profil dostępny w dwóch kolorach: biały oraz brązowy.






























