IDEAL NEO MD
Smukłe i symetryczne profile nawiązują do aktualnych trendów projektowych i nadają lekkości i elegancji oknom. Niezwykle wąskie złożenia profili to jeszcze więcej światła w pomieszczeniach. Atrakcyjne rozwiązanie zarówno w nowym budownictwie, jak i w renowacji.
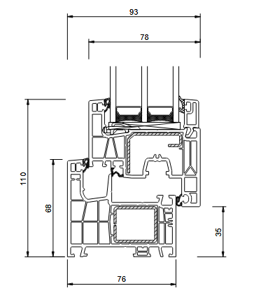
Profil klasy B.
Wyposażenie standardowe:
- dwukomorowy pakiet szybowy Ug = 0,5 W/(m2K)
- ciepła ramka tworzywowa Swisspacer Ultimate – jako opcja bezpłatna
- zgrzew V-Perfect
- 4 zaczepy antywyważeniowe w zależności od wielkości skrzydła i systemu okuć
- mikrowentylacja
- klamka aluminiowa
- mechanizm blokady błędnego położenia klamki
- uszczelki obwiedniowe, przyszybowe oraz centralna w kolorze czarnym lub szarym
- wypełnienie dolnego rowka okuciowego
- listwa podparapetowa

